ΠΩΛΕΙΤΑΙ πολυτελής βίλα στην περιοχή Αχλαδίτσα Δαρδίζα, Ερμιόνη, ισόγεια, συνολικής επιφάνειας 348 τ.μ., σε οικόπεδο 1.820 τ.μ., μόλις 10 μέτρα από τη θάλασσα.
Η κατοικία αποτελείται από 5 υπνοδωμάτια, 2 σαλόνια, κουζίνα, 6 μπάνια και 1 WC. Αναπτύσσεται σε τρία επίπεδα (ισόγειο, 1ος όροφος και υπόγειο) και διαθέτει ασανσέρ για άνετη πρόσβαση σε όλους τους χώρους.
Η κατασκευή ξεκίνησε το 2024 με βάση τις αυστηρότερες προδιαγραφές ποιότητας και ενεργειακής απόδοσης, με σεβασμό στον άνθρωπο και το περιβάλλον. Η βίλα διαθέτει ενεργειακή κλάση Α+ και προσφέρει πλήθος παροχών που εξασφαλίζουν πολυτελή και άνετη διαβίωση.
Παροχές:
Θέρμανση με αντλία θερμότητας ανά επίπεδο
Τζάκι, A/C, τριπλή ενεργειακή παροχή
Ηλιακός θερμοσίφωνας, boiler
Ενεργειακά κουφώματα, διπλά τζάμια, σίτες
Θωρακισμένη πόρτα, συναγερμός, θυροτηλεόραση
Εντοιχιζόμενες ντουλάπες, dressing room
Playroom, laundry room
Jacuzzi, πισίνα 40 τ.μ.
Φόρτιση ηλεκτρικού αυτοκινήτου
Αποθήκη, κήπος, ιδιωτικό πάρκινγκ
Πρόσβαση ΑμεΑ, εσωτερική σκάλα
Η κατοικία είναι διαμπερής, με απεριόριστη θέα στη θάλασσα
Επιφάνειες:
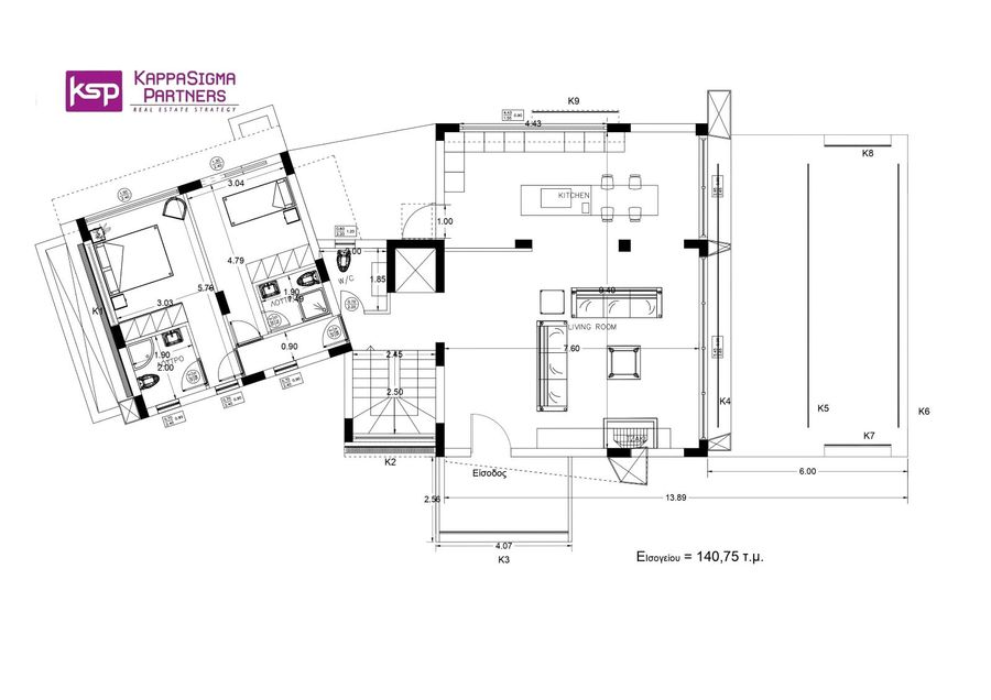
Ισόγειο: 140,75 τ.μ.
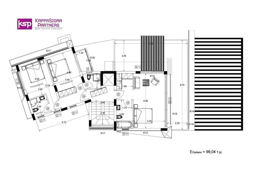
Α΄ όροφος: 99,04 τ.μ.
Υπόγειο – κύρια κατοικία: 71,91 τ.μ.
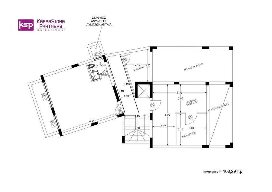
Υπόγειο – βοηθητικοί χώροι: 36,38 τ.μ.
Πισίνα: 40 τ.μ.
Δεξαμενή νερού: 50 m³
Σύνολο κύριων χώρων κατοικίας: 348 τ.μ.
Εξωτερικός χώρος: 1.640 τ.μ.
Η βίλα βρίσκεται στην ειδυλλιακή περιοχή της Ερμιόνης, ένα κόσμημα της ανατολικής Αργολίδας, κοντά στο Πόρτο Χέλι και με εύκολη πρόσβαση στην Αθήνα και στα νησιά του Αργοσαρωνικού (Σπέτσες, Ύδρα, Πόρος).
Αποστάσεις:
Αθήνα: 169 χλμ
Πόρτο Χέλι: 14 χλμ
Ναύπλιο: 85 χλμ
Τιμή: 2.200.000 €
Πρόκειται για μία μοναδική επενδυτική ευκαιρία και μία εξαιρετική πρόταση για κύρια ή εξοχική κατοικία υψηλών προδιαγραφών.
Για άμεση εξυπηρέτηση, καλέστε μας στο 211 0124800 ή στο 6972 811258 - info@kspreal.com
Kappasigma Partners - www.kspreal.com
































