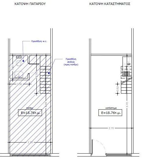
ΠΑΝΟΡΜΟΥ ΑΜΠΕΛΟΚΗΠΟΙ ΚΑΤΑΣΤΗΜΑ ΙΣΟΓΕΙΟΥ (2,70 μ. ύψος) ΜΕ ΠΑΤΑΡΙ 2,20 μ. καθαρό ύψος), ΣΥΝΟΛΙΚΗΣ ΕΠΙΦΑΝΕΙΑΣ 37 Τ.Μ.
ΣΕ ΕΞΑΙΡΕΤΙΚΗ ΘΕΣΗ ΠΛΗΣΙΟΝ ΜΕΤΡΟ ΠΑΝΟΡΜΟΥ - ΧΩΡΙΣ ΚΟΙΝΟΧΡΗΣΤΑ
ΙΣΟΓΕΙΟ 18,76 Τ.Μ. ΚΑΙ ΠΑΤΑΡΙ 18,76 Τ.Μ.
Κατάστημα με πρόσοψη 2,70 Μ. και μεγάλο συνολικό ύψος 5 μ.
Διαθέτει W.C. και αυτόνομη παροχή ρεύματος και ύδρευσης
Τακτοποιημένο, καθαρός τίτλος, κατάλληλο και για αλλαγή χρήσης σε κατοικία
55.000€ τιμή πώλησης
Για περισσότερες πληροφορίες, καλέστε μας στο 211 0124799 / 6972 811258 / info@kspreal.com
Kappasigma Partners - www.kspreal.com












































