ΠΑΤΡΑ Παραλία, Κέντρο: 100 μ. από την θάλασσα, διαμπερές διαμέρισμα 95 τ.μ. εξαιρετικής διαρρύθμισης σε 145 τ.μ. οικόπεδο προσόψεως σε ισόγειο.
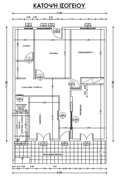
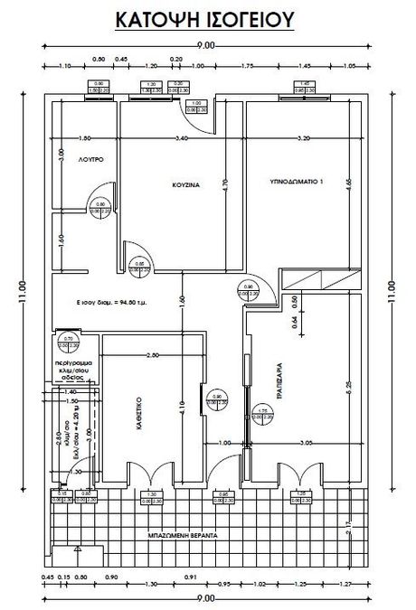
Αποτελείται από 2 υπνοδωμάτια, ευρύχωρη κουζίνα, άνετο σαλόνι, διάδρομο, εσωτερική αποθήκη και μπάνιο.
Είναι κατασκευασμένο το 1978 και διαθέτει ξύλινα κουφώματα και μπαλκονόπορτες αλουμινίου στην πρόσοψη, δάπεδα επικαλυμμένα με μάρμαρο και ξύλο πλακόστρωτη αυλή με πρόσβαση από την κουζίνα, βεράντα προσόψεως με πρόσβαση από το σαλόνι και το ένα υπνοδωμάτιο, με κάγκελα περιφραγμένο, εξαιρετικής διαρρύθμισης, σε καλή κατάσταση. Δυνατότητα διαχωρισμού και σε δύο διαμερίσματα προσόψεως με μικρό κόστος.
Τιμή πώλησης: 85.000€
Χωρίς κοινόχρηστα, διατίθεται ελεύθερο, καθαρός τίτλος.
Μόλις 100 Μ. από την θάλασσα!
Κατάλληλο και για GOLDEN VISA
Η Πάτρα είναι η 3η μεγαλύτερη πόλη της Ελλάδας, παραθαλάσσια, με πολλά αξιοθέατα όπως το υπέροχο κέντρο της, με πολλά καταστήματα, καφετέριες, εστιατόρια για ευχάριστες στιγμές, τη γέφυρα Ρίο - Αντίρριο σε κοντινή απόσταση, υπέροχες θάλασσες, εξορμήσεις στο βουνό και τα γύρω χωριά.
Επικοινωνήστε μαζί μας για να δείτε αυτή την όμορφη κατοικία σε ελκυστική τιμή.
Για άμεση εξυπηρέτηση, παρακαλούμε για επικοινωνία στο 2110124800 / 6972 811258 / info@kspreal.com
Kappasigma Partners / www.kspreal.com


















































